Ac Installation Permit . Ac units should have dedicated. you need a permit to install, modify, or replace a central air conditioning system due to the potential hazards. A licensed hvac contractor will always obtain a permit. obtain permission for installation from building management. We’ll also talk about the. in this article, we’ll look at why permits and inspections are a vital part of any hvac installation. The answer varies by state and city, but in most cases, yes. Whether it’s upgrading your air conditioner, installing a new. Make sure that electrical service is adequate. so the answer to the question if a permit is really required, the short answer is yes (a quick phone call to your local. does an hvac company need permits to install an ac? when planning to replace your hvac system, it’s essential to know that in most cases, you do indeed need a permit.
from dokumen.tips
you need a permit to install, modify, or replace a central air conditioning system due to the potential hazards. The answer varies by state and city, but in most cases, yes. We’ll also talk about the. Ac units should have dedicated. Whether it’s upgrading your air conditioner, installing a new. does an hvac company need permits to install an ac? when planning to replace your hvac system, it’s essential to know that in most cases, you do indeed need a permit. obtain permission for installation from building management. A licensed hvac contractor will always obtain a permit. in this article, we’ll look at why permits and inspections are a vital part of any hvac installation.
(PDF) CERTIFICATE Permit to work in electrical installation DOKUMEN.TIPS
Ac Installation Permit We’ll also talk about the. The answer varies by state and city, but in most cases, yes. Ac units should have dedicated. Make sure that electrical service is adequate. you need a permit to install, modify, or replace a central air conditioning system due to the potential hazards. We’ll also talk about the. in this article, we’ll look at why permits and inspections are a vital part of any hvac installation. A licensed hvac contractor will always obtain a permit. does an hvac company need permits to install an ac? when planning to replace your hvac system, it’s essential to know that in most cases, you do indeed need a permit. obtain permission for installation from building management. so the answer to the question if a permit is really required, the short answer is yes (a quick phone call to your local. Whether it’s upgrading your air conditioner, installing a new.
From www.pdffiller.com
Fillable Online HVAC PERMIT Fax Email Print pdfFiller Ac Installation Permit does an hvac company need permits to install an ac? We’ll also talk about the. you need a permit to install, modify, or replace a central air conditioning system due to the potential hazards. The answer varies by state and city, but in most cases, yes. Whether it’s upgrading your air conditioner, installing a new. Make sure that. Ac Installation Permit.
From www.scribd.com
An Accurate Electronics Permit Application for a Large Office Renovation and Security System Ac Installation Permit does an hvac company need permits to install an ac? A licensed hvac contractor will always obtain a permit. Ac units should have dedicated. The answer varies by state and city, but in most cases, yes. in this article, we’ll look at why permits and inspections are a vital part of any hvac installation. Make sure that electrical. Ac Installation Permit.
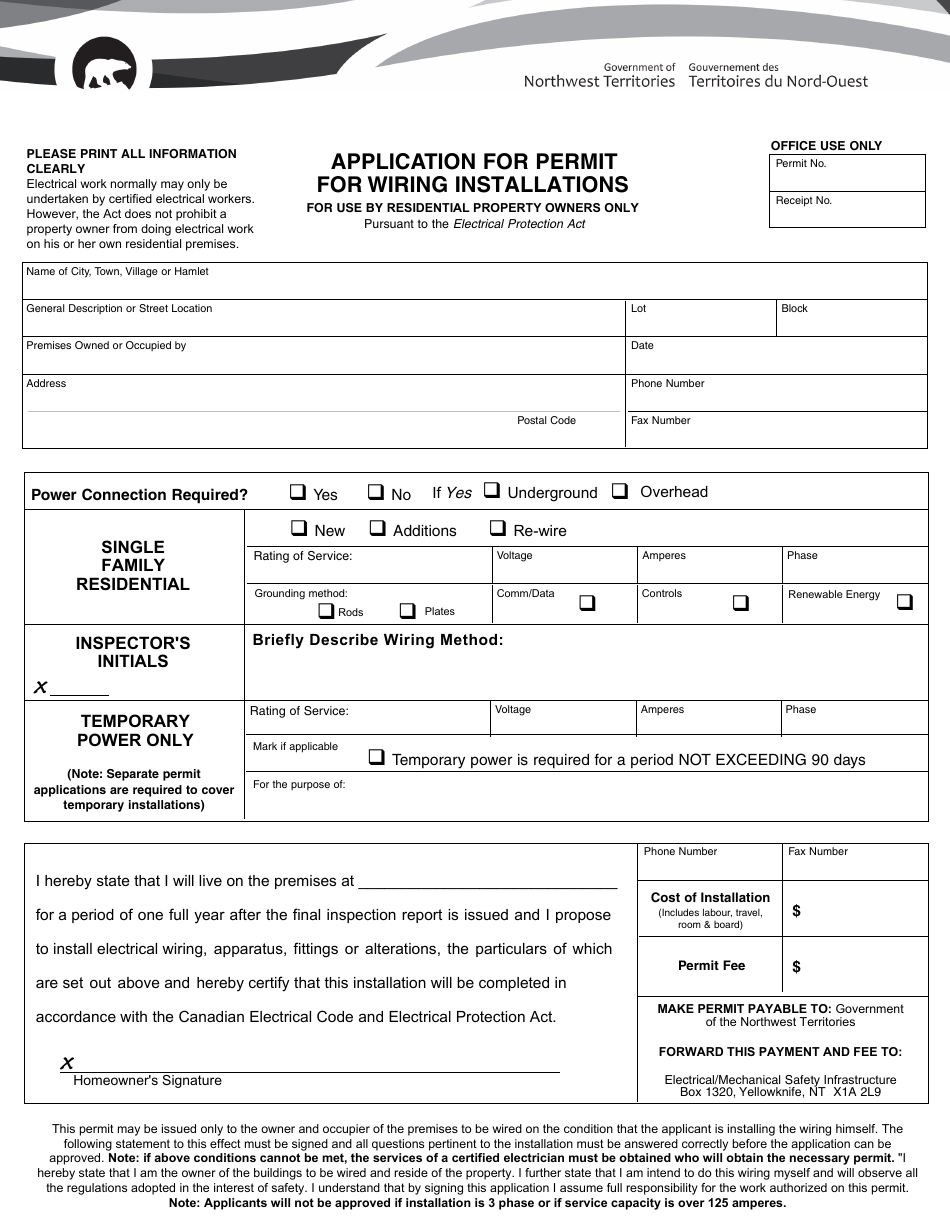
From www.templateroller.com
Northwest Territories Canada Application for Permit for Wiring Installations Residential Ac Installation Permit does an hvac company need permits to install an ac? when planning to replace your hvac system, it’s essential to know that in most cases, you do indeed need a permit. The answer varies by state and city, but in most cases, yes. obtain permission for installation from building management. A licensed hvac contractor will always obtain. Ac Installation Permit.
From studylib.net
HEATING, AIR CONDITIONING, & REFRIGERATION PERMIT APPLICATION CITY OF COLUMBIA DEVELOPMENT SERVICES Ac Installation Permit Make sure that electrical service is adequate. Whether it’s upgrading your air conditioner, installing a new. so the answer to the question if a permit is really required, the short answer is yes (a quick phone call to your local. obtain permission for installation from building management. in this article, we’ll look at why permits and inspections. Ac Installation Permit.
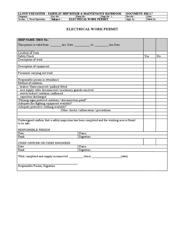
From www.scribd.com
02 07 Electrical Work Permit PDF Ac Installation Permit Make sure that electrical service is adequate. We’ll also talk about the. A licensed hvac contractor will always obtain a permit. Ac units should have dedicated. Whether it’s upgrading your air conditioner, installing a new. you need a permit to install, modify, or replace a central air conditioning system due to the potential hazards. obtain permission for installation. Ac Installation Permit.
From ac-installation-repair.com
The Importance of Permits for Residential Central AC Installation Ac Installation Permit in this article, we’ll look at why permits and inspections are a vital part of any hvac installation. when planning to replace your hvac system, it’s essential to know that in most cases, you do indeed need a permit. Ac units should have dedicated. We’ll also talk about the. so the answer to the question if a. Ac Installation Permit.
From exofpclgv.blob.core.windows.net
Air Conditioner Installation Regulations Qld at Aisha Villasenor blog Ac Installation Permit Whether it’s upgrading your air conditioner, installing a new. Make sure that electrical service is adequate. so the answer to the question if a permit is really required, the short answer is yes (a quick phone call to your local. you need a permit to install, modify, or replace a central air conditioning system due to the potential. Ac Installation Permit.
From www.reidsmartialarts.com
The Ultimate Guide To Air Conditioning Installation Tips And Tricks Reids Martial Arts Ac Installation Permit you need a permit to install, modify, or replace a central air conditioning system due to the potential hazards. does an hvac company need permits to install an ac? obtain permission for installation from building management. Whether it’s upgrading your air conditioner, installing a new. in this article, we’ll look at why permits and inspections are. Ac Installation Permit.
From www.missionac.com
Houston Residential A/C Permit Process Ac Installation Permit in this article, we’ll look at why permits and inspections are a vital part of any hvac installation. does an hvac company need permits to install an ac? obtain permission for installation from building management. Whether it’s upgrading your air conditioner, installing a new. Ac units should have dedicated. Make sure that electrical service is adequate. We’ll. Ac Installation Permit.
From www.reddit.com
Help Filling out permit for ductless mini split installation. HomeImprovement Ac Installation Permit The answer varies by state and city, but in most cases, yes. We’ll also talk about the. you need a permit to install, modify, or replace a central air conditioning system due to the potential hazards. does an hvac company need permits to install an ac? so the answer to the question if a permit is really. Ac Installation Permit.
From polaanthropologieando.blogspot.com
Air Conditioner Permit Https Www Santaclaraca Gov Home Showdocument Id 46348 Currently air Ac Installation Permit obtain permission for installation from building management. does an hvac company need permits to install an ac? Make sure that electrical service is adequate. you need a permit to install, modify, or replace a central air conditioning system due to the potential hazards. when planning to replace your hvac system, it’s essential to know that in. Ac Installation Permit.
From jvovrt.com
AC Permits Ac Installation Permit Ac units should have dedicated. We’ll also talk about the. A licensed hvac contractor will always obtain a permit. you need a permit to install, modify, or replace a central air conditioning system due to the potential hazards. obtain permission for installation from building management. so the answer to the question if a permit is really required,. Ac Installation Permit.
From ams-hvac.ca
Do I Need a Permit to Install an Air Conditioning Unit? Airomatic Mechanical Systems Ac Installation Permit so the answer to the question if a permit is really required, the short answer is yes (a quick phone call to your local. in this article, we’ll look at why permits and inspections are a vital part of any hvac installation. Ac units should have dedicated. We’ll also talk about the. you need a permit to. Ac Installation Permit.
From www.youtube.com
How to Apply and File an Electrical Permit for Do It Yourself DIY Home Improvements YouTube Ac Installation Permit Whether it’s upgrading your air conditioner, installing a new. Ac units should have dedicated. Make sure that electrical service is adequate. so the answer to the question if a permit is really required, the short answer is yes (a quick phone call to your local. obtain permission for installation from building management. The answer varies by state and. Ac Installation Permit.
From cefxcish.blob.core.windows.net
Air Conditioning Installation Rules at Ramon Carbajal blog Ac Installation Permit A licensed hvac contractor will always obtain a permit. Whether it’s upgrading your air conditioner, installing a new. Make sure that electrical service is adequate. you need a permit to install, modify, or replace a central air conditioning system due to the potential hazards. The answer varies by state and city, but in most cases, yes. in this. Ac Installation Permit.
From homeownerair.com
Permit Processing for Mechanical Air Conditioning Building Permit CA Ac Installation Permit The answer varies by state and city, but in most cases, yes. A licensed hvac contractor will always obtain a permit. when planning to replace your hvac system, it’s essential to know that in most cases, you do indeed need a permit. in this article, we’ll look at why permits and inspections are a vital part of any. Ac Installation Permit.
From www.onehourairdallas.com
Air Conditioner Installation Permits And Inspection Benefits Of Inspections And Permits Ac Installation Permit Ac units should have dedicated. Make sure that electrical service is adequate. We’ll also talk about the. obtain permission for installation from building management. when planning to replace your hvac system, it’s essential to know that in most cases, you do indeed need a permit. Whether it’s upgrading your air conditioner, installing a new. A licensed hvac contractor. Ac Installation Permit.
From dokumen.tips
(PDF) CERTIFICATE Permit to work in electrical installation DOKUMEN.TIPS Ac Installation Permit does an hvac company need permits to install an ac? so the answer to the question if a permit is really required, the short answer is yes (a quick phone call to your local. We’ll also talk about the. Make sure that electrical service is adequate. The answer varies by state and city, but in most cases, yes.. Ac Installation Permit.